Get Desain Rumah Minimalis Ukuran 9X13 Pics. Model rumah seperti ini tidak hanya berkembang di perumahan kota besar, tetapi juga menjalar sampai ke penjuru daerah hampir seluruh pelosok tanah air. Desain rumah sederhana ukuran 912 desainrumahkitanet via desainrumahkita.net.
Jumlah anggota keluarga yang banyak tentu harus didukung dengan jumlah kamar tidur 12.
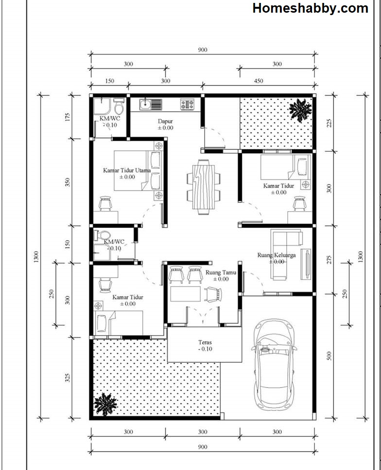
Terima jasa desain atau request desain untuk renovasi & bangun baru 1. Saya ada rencana bangun ruko + kostn 2 lantai / bisa di bilang rumah serba guna,dengan luas tanah 4m x 9.50m,dengan posisi. Dengan desain minimalis modern, rumah type 36 ini semakin terlihat elegan. Akan lebih efisien dan efektif, karena ukuran yang kecil.


