The Place For Over 10.000 Popular Download, Design, Music, Anime, Wallpaper, Logo, Image and more.
46+ Troya Müzesi Planları Background
02/04/2019 00:00
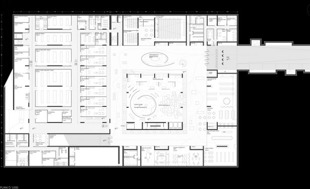
46+ Troya Müzesi Planları Background. Açık alanları ile bir bütün olarak tasarlanan troya müzesi, aldığı referanslarla üst ölçekte ören yerinin önemli bir parçası haline gelecektir. Çanakkale arkeoloji müzesi içindeki tüm eserler taşınmış olup troya müzesi olarak;
Troya Muzesi Arkitektuel from www.arkitektuel.com
22 temmuz 2019 | uygulama 81. The archeological site of troy has been inscribed as a unesco world heritage site in 1998 because of. 10,700 m2 ekip troya efsanesinin bu anlamda en ilgi çekici mekanı, 9 şehirden arta kalanlardan öte coğrafyanın kendisidir.
.yer alan ve dünyanın en ünlü arkeolojik alanlarından biri olan troya'da, 'troya müzesi ulusal mimari yarışması'nda 1.lik ödülünü kazandı.
Troya ve troas kentlerinden elde edilen kültür varlıkları sergilenmektedir. Troas bölgesi ve troya hazineleri bilgileri. En tr jp ru de. 74 yorum, makale ve 363 resme bakın.